Projektwettbewerb Ersatzneubau Buechehof Erlinsbach

Der Buechehof ist eine sozialtherapeutische Einrichtung für erwachsene Menschen mit einer kognitiven Beeinträchtigung.
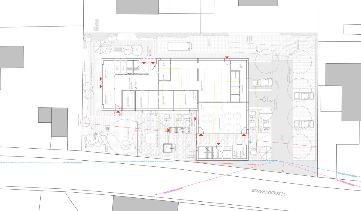
Unser Projektvorschlag knüpft an der bestehenden Dorfstruktur an. Die L-förmige Setzung der Baukörper und das bestehende, der Kantonsstrasse gegenüberliegende Gebäude definieren ein „dorfraumbildendes Ensemble“ aus drei gleichständig ausgerichteten Giebelbaukörper. Der dorfseitig einladend gestaltete Aussenraum und die Einbindung der öffentlichen Fussgängerführung bilden Scharniere zur Bevölkerung (Inklusion).

Projektwettbewerb: 2020
Auftraggeber: Verein Buechehof, Lostorf, Sozialtherapeutische Einrichtung

Teampartner:
- SKK Landschaftsarchitekten AG, Wettingen
- Nova Energie GmbH, Aarau

Zurück